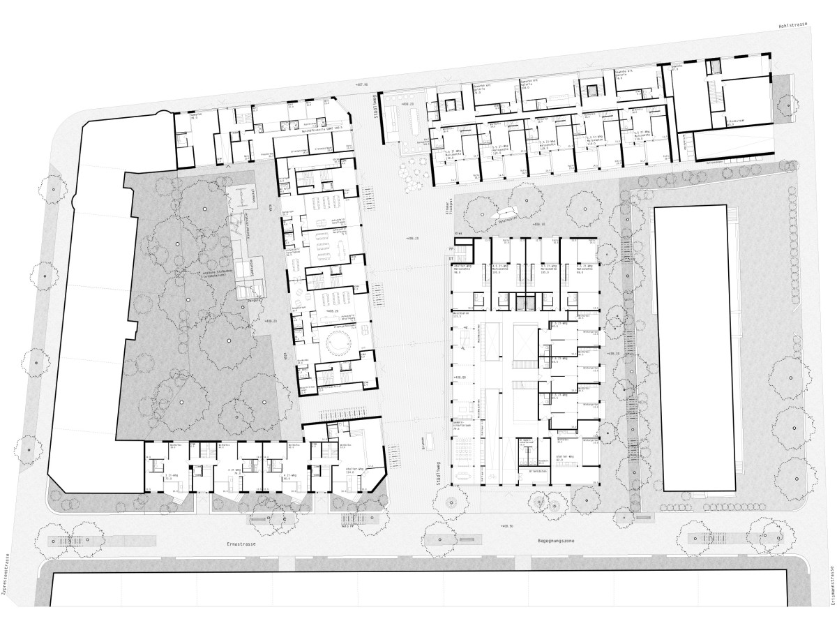
Zuschlag für Wohnzeile
Standort: Zürich-Altstetten ZH
Auftragsform: Studienauftrag auf Einladung
Programm: 390 Wohnungen mit vielseitiger Erdgeschossnutzung
Auftraggebende: Halter AG Gesamtleistungen
Termine: Studienauftrag 2023, Planung ab 2023
Landschaftsarchitektur: Uniola Landschaftsarchitektur
Projektteam: Samuel Waehry, Gabriel Gmür, Samuel Tobler
5. PREIS
Standort: Reussbühl LU
Auftragsform: offener Projektwettbewerb
Programm: Erweiterungsbau für 18 Klassen sowie eine zusätzliche Sportanlage
Auftraggebende: Finanzdepartement des Kantons Luzern
Termine: Studienauftrag 2022
Landschaftsarchitektur: Laboratorium KLG, Zürich
1. PREIS
Standort: St. Gallen SG
Auftragsform: Studienauftrag im Einladungsverfahren
Programm: Wohn- und Gewerbeüberbauung mit 217 Wohneinheiten und 760 m2 Gemeinschafts- und Gewerbeflächen
Auftraggebende: Swiss Life Asset Management AG
Termine: Studienauftag 2021, geplante Fertigstellung 2025
Projektteam: Lorna Fuchs, Lukas Graf, Seraina Bollinger, Gabriel Gmür, Samuel Tobler
Landschaftsarchitektur: Henning Larsen
1. PREIS
Standort: Zürich ZH
Auftragsform: Projektwettbewerb im Einladungsverfahren
Programm: Genossenschaftliches Wohnhaus mit 17 Wohnungen, einer Gewerbeeinheit sowie vielfältigen Gemeinschaftsflächen
Auftraggebende: Baugenossenschaft Rotach, Zürich
Termine: Wettbewerb 2019, geplante Fertigstellung 2024
Projektteam: Samuel Waehry, Gabriel Gmür, Samuel Tobler
Landschaftsarchitektur: LINEA landscape architecture, Zürich
Standort: Fex-Crasta GR
Chesa Stiefel
Auftragsform: Direktauftrag
Auftraggebende: privat
Termine: Fertigstellung 2019
Projektteam: Gabriel Gmür
Zusammenarbeit mit Atelier Jasna Strukelj Gmür
2. PREIS
Standort: Zürich ZH
Auftragsform: selektiver Projektwettbewerb
Programm: Genossenschaftliche Wohnüberbauung mit ca. 160 Wohneinheiten und ca. 1'000 m2 Gewerbe- und Gemeinschaftsflächen
Auftraggebende: GBMZ
Termine: Wettbewerb 2018
Landschaftsarchitektur: Lorenz Eugster Landschaftsarchitektur, Zürich
Zusammenarbeit mit Ralf Figi, Zürich
2. PREIS
Standort: Zürich ZH
Auftragsform: selektiver Projektwettbewerb
Programm: Genossenschaftliche Wohn- und Gewerbeüberbauung mit ca. 160 Wohneinheiten sowie ca. 4'000 m2 Gemeinschafts-, Gewerbe- und Dienstleisungsnutzungen
Auftraggebende: Genossenschaft Kraftwerk 1, Zürich
Termine: Wettbewerb 2019
Landschaftsarchitektur: Ganz Landschaftsarchitek*innen, Zürich
Zusammenarbeit mit Stücheli Pestalozzi Schiratzki Architekten, Zürich
1. Preis Gebäudetypologie
Standort: Luzern LU
Auftragsform: Projektwettbewerb im Einladungsverfahren
Programm Realisierung: Wohnhaus in Holzbauweise mit 21 Wohneinheiten, Gemeinschafts- und Gewerbeflächen
Auftraggebende: GWI Luzern
Termine: Wettbewerb 2018, geplante Fertigstellung 2024
Projektteam: Elias Vollmeier, Gabriel Gmür, Samuel Tobler
1. Preis Gebäudetypologie
Standort: Luzern LU
Auftragsform: Projektwettbewerb im Einladungsverfahren
Programm Realisierung: Wohnhaus in Holzbauweise mit 19 Wohneinheiten, Gemeinschafts- und Gewerbeflächen
Auftraggebende: WOGENO Luzern
Termine: Wettbewerb 2018, geplante Fertigstellung 2024
Projektteam: Elias Vollmeier, Gabriel Gmür, Samuel Tobler
1. PREIS
Standort: Egnach TG
Auftragsform: Studienauftrag
Programm: 28 Eigentumswohnungen, 18 Mietwohnungen
Auftraggebende: HRS Real Estate AG
Termine: Studienauftrag 2017, Fertigstellung 2024
Projektteam: Pablo Vuillemin, Gabriel Gmür, Samuel Tobler
Landschaftsarchitektur: LINEA landscape architecture, Zürich
Standort: Buochs NW
Auftragsform: Direktauftrag
Auftraggebende: privat
Termine: Fertigstellung 2015
Projektteam: Samuel Tobler
1. PREIS
Standort: Luzern LU
Auftragsform: eingeladener Projektwettbewerb
Programm: Wohn- und Gewerbeüberbauung mit ca. 16'000 m2 GF
Auftraggebende: HRS Investment AG / Schweizerische Mobiliar
Termine: Wettbewerb 2015
Landschaftsarchitektur: Albiez de Tomasi Landschaftsarchitekten, Zürich
Zusammenarbeit mit Steib & Geschwentner Architekten AG, Zürich
2. PREIS
Standort: Zürich ZH
Auftragsform: offener Projektwettbewerb
Programm: Wohn- und Gewerbeüberbauung mit ca. 9'000 m2 HNF
Auftraggebende: Genossenschaft Kalkbreite, Zürich
Termine: Wettbewerb 2015
Zusammenarbeit mit Gian Trachsler, Zürich
051
Heerbrugg, St. Gallen
Machbarkeitsstudie
050
Stephanshorn, St. Gallen
Studienauftrag
engere Wahl
049
Riedt2, Regensdorf
Ideenwettbewerb
engere Wahl
048
Riethüsli, St. Gallen
anonymer Studienauftrag
2. Preis
045
BFG-Areal, Zürich
Studienauftrag auf Einladung
Empfehlung zur Weiterbearbeitung "Baufeld Zeile"
In Bearbeitung
043
Rheinfels II, Chur
Innenausbau einer Filiale Bäckerei Merz
Direktauftrag
In Bearbeitung
041
Mühlbach, Chur
Innenausbau einer Filiale Bäckerei Merz im Bahnhof Chur
Direktauftrag
In Bearbeitung
044
Wohnhäuser Breitensteinstrasse, Zürich
Planerwahlverfahren
042
Wiesental, Chur
Renovation und Innenausbau einer Filiale Bäckerei Merz
Direktauftrag
Fertigstellung 2022
040
Erweiterung Kantonsschule Reussbühl, Luzern
Projektwettbewerb im offenen Verfahren
5. PREIS
039
Überbauung Areal Lindental, St.Gallen
Studienauftrag auf Einladung
1. PREIS
In Bearbeitung
038
Überbauung "Im Haufland", Fällanden
Studienauftrag auf Einladung
engere Auswahl
037
Mühleweiher, Meggen
Testplanung
Empfehlung zur Weiterbearbeitung
036
Bell-Areal, Kriens
Studienauftrag, Konzeptphase
035
Geschäfts- und Wohnhaus Pilatusplatz, Luzern
Projektwettbewerb für Investoren und Architekten
Zusammenarbeit mit HVDM architects & cityplanners
034
Ersatzneubau Buchholzstrasse, Zürich
Studienauftrag auf Einladung
engere Auswahl
033
Ersatzneubau Triemli 4, Zürich
Genossenschaftlicher Wohnungsbau
Projektwettbewerb auf Einladung
1. PREIS
In Bearbeitung
032
Lischenmoos Baufels A1, Gümligen
Projektwettbewerb für ein Hochhaus
031
Eichwald, Luzern
Genossenschaftliches Wohn- und Gewerbegebäude
Projektwettbewerb mit Präqualifikation
Zusammenarbeit mit HVDM architects & cityplanners
2. PREIS
030
Ersatzneubau Eibenstrasse, Zürich
Studienauftrag auf Einladung
engere Auswahl
029
Stöcklin-Areal, Aesch/Reinach
Architektenwahlverfahren in Konkurrenz
028
Ersatzneubau Siedlung 6 "Stüdli", Zürich
Projektwettbewerb im selektiven Verfahren
Genossenschaftlicher Wohnungsbau
Zusammenarbeit mit Ralf Figi, Zürich
2. PREIS
027
Koch-Areal, Zürich
Genossenschaftliches Wohnhaus mit Gewerbe, Kraftwerk 1
Wettbewerb im selektiven Verfahren
Zusammenarbeit mit Stücheli Pestalozzi Schiratzki Architekten, Zürich
2. PREIS
026
Saurer Areal Baufeld B, Aarbon
Studie
025
Botschaft Peking
Projektwettbewerb im offenen Verfahren
024
Ersatzneubau für die Baugewerblich Berufsschule Zürich
Projektwettbewerb im offenen Verfahren
Zusammenarbeit mit Seraina Merz Architektur, Zürich
023
Wohnüberbauung Aachweg, Egnach
Studienauftrag auf Einladung
1. PREIS
In Bearbeitung
022
Ersatzneubau Wohnsiedlung Hardau I, Zürich
Projektwettbewerb im offenen Verfahren
3. Wertungsrundgang
021
Areal Industriestrasse, Luzern
Genossenschaftlicher Wohnungsbau
Projektwettbewerb auf Einladung in zwei Stufen
3. PREIS, Sieger in der Disziplin Gebäudetyologie
In Bearbeitung
020
Neustadtstrasse, Luzern
Studie
019
Ersatzneubau Luegislandstrasse, Zürich
Studienauftrag auf Einladung
engere Auswahl
017
Wendelmatte, Greppen
Studienauftrag
Zusammenarbeit mit Lengacher Emmenegger Architekten
016
Stadtkaserne Frauenfeld und Oberes Mätteli
städtebaulicher Ideenwettbewerb mit Präqualifikation
4. PREIS
015
Chesa Stiefel, Fex-Crasta
Küchenrenovation eines denkmalgeschützen Engadinerhauses
Fertigstellung 2018
014
Neugestaltung Bahnhofsstrasse und Theaterplatz, Luzern
Projektwettbewerb im offenen Verfahren, für Landschaftsarchitekten mit Architekten und Verkehrsplanern
013
Umbau Blüemlisalpstrasse, Zürich
Fertigstellung 2017
012
Sommerhaus am Vierwaldstättersee, Buochs
Umbau der bestehenden Garage zu gedämmtem Wohnraum mit Bad
010
Bundesplatz Süd, Luzern
Projektwettberb auf Einladung
Zusammenarbeit mit Steib & Geschwentner Architekten
1. PREIS
In Bearbeitung
009
Alterszentrum und Wohnsiedlung Eichrain, Zürich
Projektwettbewerb im offenen Verfahren
007
Neubau Quartierzentrum Wesemlin, Luzern
Ideen- und Projektwettbewerb
In Zusammenarbeit mit Eugen Mugglin, Luzern
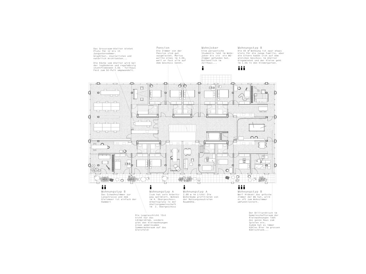
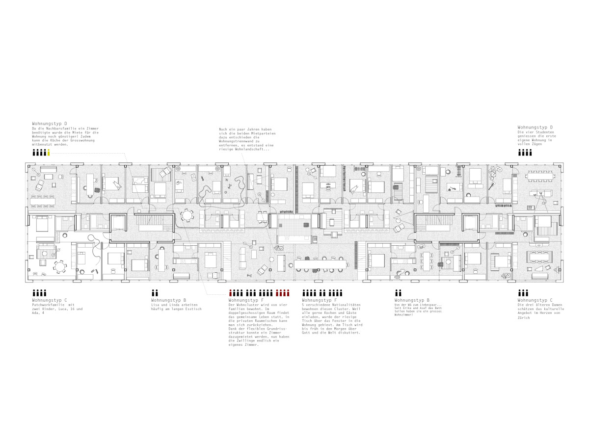
005
Neubau Wohn- und Gewerbeüberbauung Zollhaus, Zürich
Projektwettbewerb im offenen Verfahren
Zusammenarbeit mit Gian Trachsler, Zürich
2. PREIS
004
Ersatzneubau Schulhaus Tannenbrunn, Sissach
Projektwettbewerb im offenen Verfahren
002
Wohnüberbauung Eymatt, Bern
Gesamtleistungswettbewerb im selektiven Verfahren
001
Neubau Kindertagesstätte, St.Moritz
Projektwettbewerb
Manuel Blum
Pierre Bögli
Fabian Dos Santos
Lorna Fuchs
David Hagberg
Majella Hauri
Sabina Kickhofel
Basil Schürch
Cyril Queyrau
Iliana Traxler
Julia Werlberger
Justinas Zuklys
Für die Mitarbeit an unterschiedlichen Projekten in allen Projektphasen suchen wir ab sofort oder nach Vereinbarung Praktikant*innen für eine Mindestdauer von sechs Monaten.
Wir freuen uns über Dein Portfolio per Post oder an info@toblergmuer.ch